L’EXTENSION QUI REDÉFINIT L’ESPACE D’UNE MAISON BRETONNE
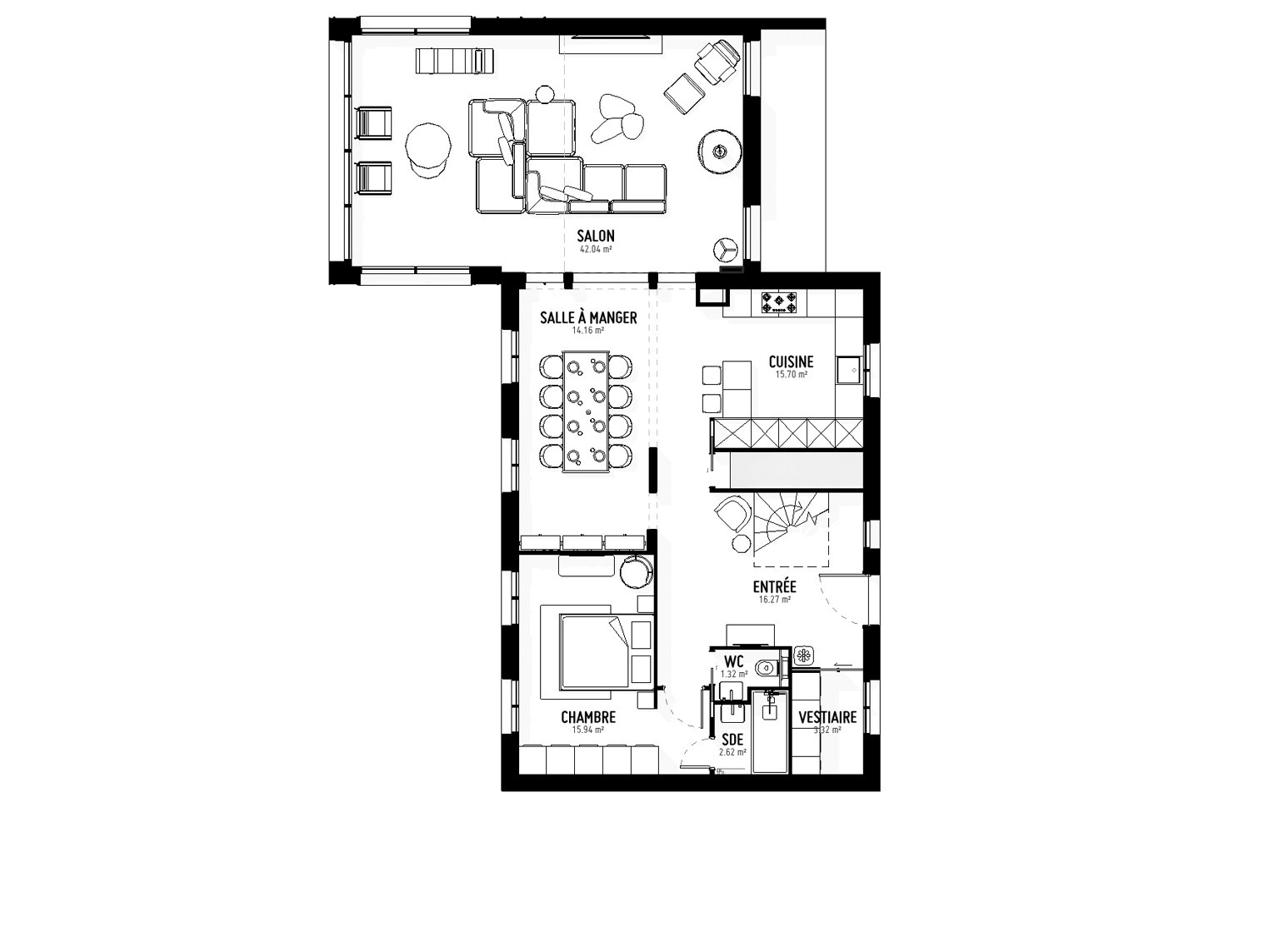
CETTE EXTENSION TRANSFORME COMPLÈTEMENT UNE MAISON BRETONNE EXISTANTE, AVEC OBJECTIF DE RAJEUNIR L’HABITATION SUR LE PLAN DU CONFORT ET DE L’ESTHÉTIQUE, TOUT EN RESPECTANT LA TRADITION ARCHITECTURALE LOCALE. ELLE OFFRE DÉSORMAIS UNE VUE IMPRENABLE SUR LA MER ET UN ESPACE DE VIE MODERNE ET LUMINEUX. LA PARTIE NOUVELLE SE DISTINGUE PAR UN TRAITEMENT CONTEMPORAIN, AVEC UN BARDAGE EN ZINC QUI COMPLÈTE L’ARDOISE EXISTANTE, CRÉANT UN DIALOGUE SUBTIL ENTRE TRADITION ET MODERNITÉ. CE PROJET A ÉTÉ RÉALISÉ EN COLLABORATION AVEC CHRISTIAN SAULNIER.